7 The Mall, Ealing, W5 2PJ

£ 1,750,000

Ealing

Mixed Use

W5 2PJ

31-01-2024


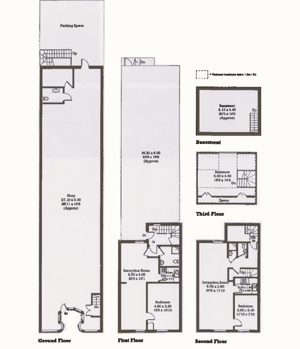
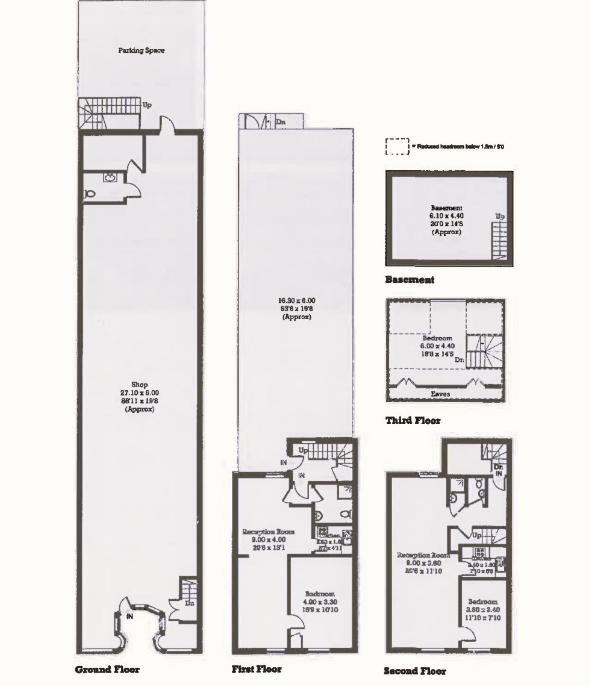
Kingworths are proud to present this rare investment opportunity in the heart of Ealing Broadway, consisting of a mixed-use FREEHOLD property; commercial unit and two flats above. Ground floor commercial property is occupied by Paddy Power on a 25-year lease from 2004, paying an annual rent of £45,000. One bedroom and two-bedroom apartments above are both paying £1,200 pcm on rolling AST’s which in our opinion is way below market value. Total return is £73,800. Further benefits include two parking spaces at the back of the property with scope to extend and redevelopment potential (STPP).

Location:
The premises are in a prime position on The Mall, Ealing, W5. Located within a one-minute walk to Ealing Broadway Station which is on District, Central and newly opened Elizabeth Line (part of Crossrail). Nearby retailers include Marks and Spencer, Primark and Amazon Fresh, which was Amazon's first unit outside of North America. Local area is currently undergoing a number of new build projects as well as having a whole array of bars, shops and restaurants.

Accommodation:
Ground floor commercial & basement + two flats above: 339 Sq m / 3,648 Sq ft

Usage:
We believe the commercial premises fall under Sui Generis class of The Town & Country Planning (Use Classes) (Amendment) (England) Regulations 2020.

Vat:
All figures are deemed exclusive of Vat where applicable.

EPC:
Commercial unit and both apartments have an energy performance rating of: C

Viewings:
Strictly by an appointment via sole agent Kingworths.