2 Shepherds Bush Road, W6 7PJ

£ 30,000

Shepherds Bush

Office

2 SBR

16-11-2023


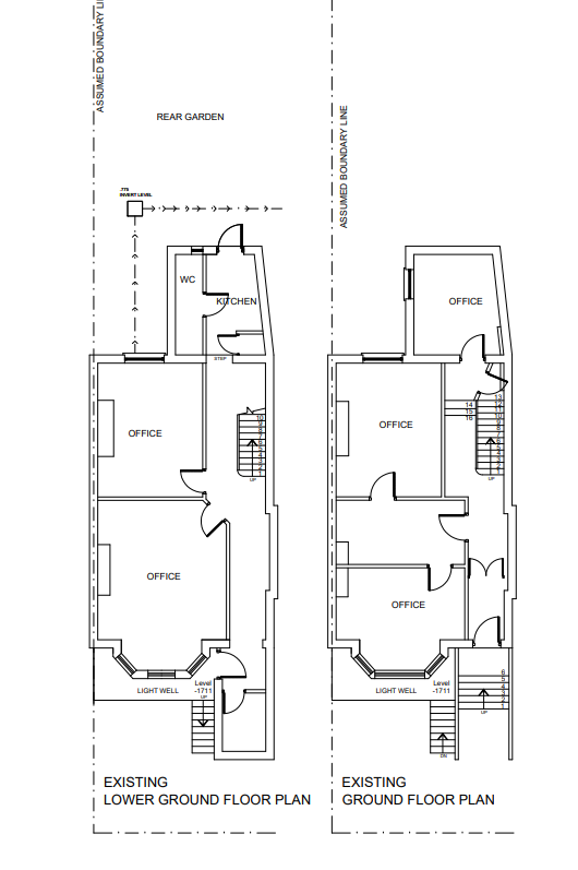
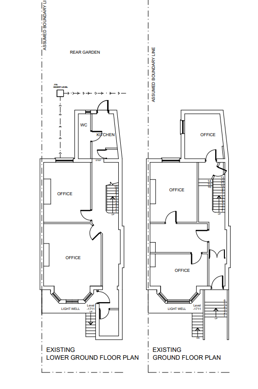
Split level commercial unit to let, suitable for a variety of uses within E Class order in a sought-after location. The property consists of ground floor and lower ground floor spaces, kitchen, WC and plenty of storage space. This unit will be suitable for an office set up business as well as medical uses and will be available from October 2025. Further benefits include an off-street parking space and a large garden.

Location:
Situated just moments from both Shepherd's Bush tube and overground stations. World famous Westfield shopping centre is within a 5-minute walk, providing a whole host of retail businesses, cafes, restaurants, bars as well as being within 15 minutes’ walk to Hammersmith Station.

Terms:
Available by a way of a new Full Repairing and Insuring lease (FRI) for a term to be negotiated, outside Landlord and Tenant Act 1954 at an annual rent of £30,000.

Accommodation:
Ground floor: 55 sq m | 588 sq ft
Lower ground floor: 60 sq m | 643 sq ft
Total: 115 sq m | 1,231 sq ft

Usage:
We believe the premises fall under Class E of The Town & Country Planning (Use Classes) (Amendment) (England) Regulations 2020, however applicants are advised to make their own enquiries with London Borough of Hammersmith and Fulham Council.

Business rates:
Applicants are advised to make their own enquiries with London Borough of Hammersmith and Fulham Council.

EPC:
This property has an energy performance rating of E.

Legal Costs:
Each party to bear their own legal costs incurred in this transaction.

Viewings:
Strictly by an appointment via Kingworths.

Sorry, we do not have any epc files at this time.