Park Royal Metro Centre, Britannia Way, Park Royal, NW10 7PA
£ 26,000
Park Royal
Light Industrial / Office
NW10 7PA
06-09-2023
Highlight Features
Description
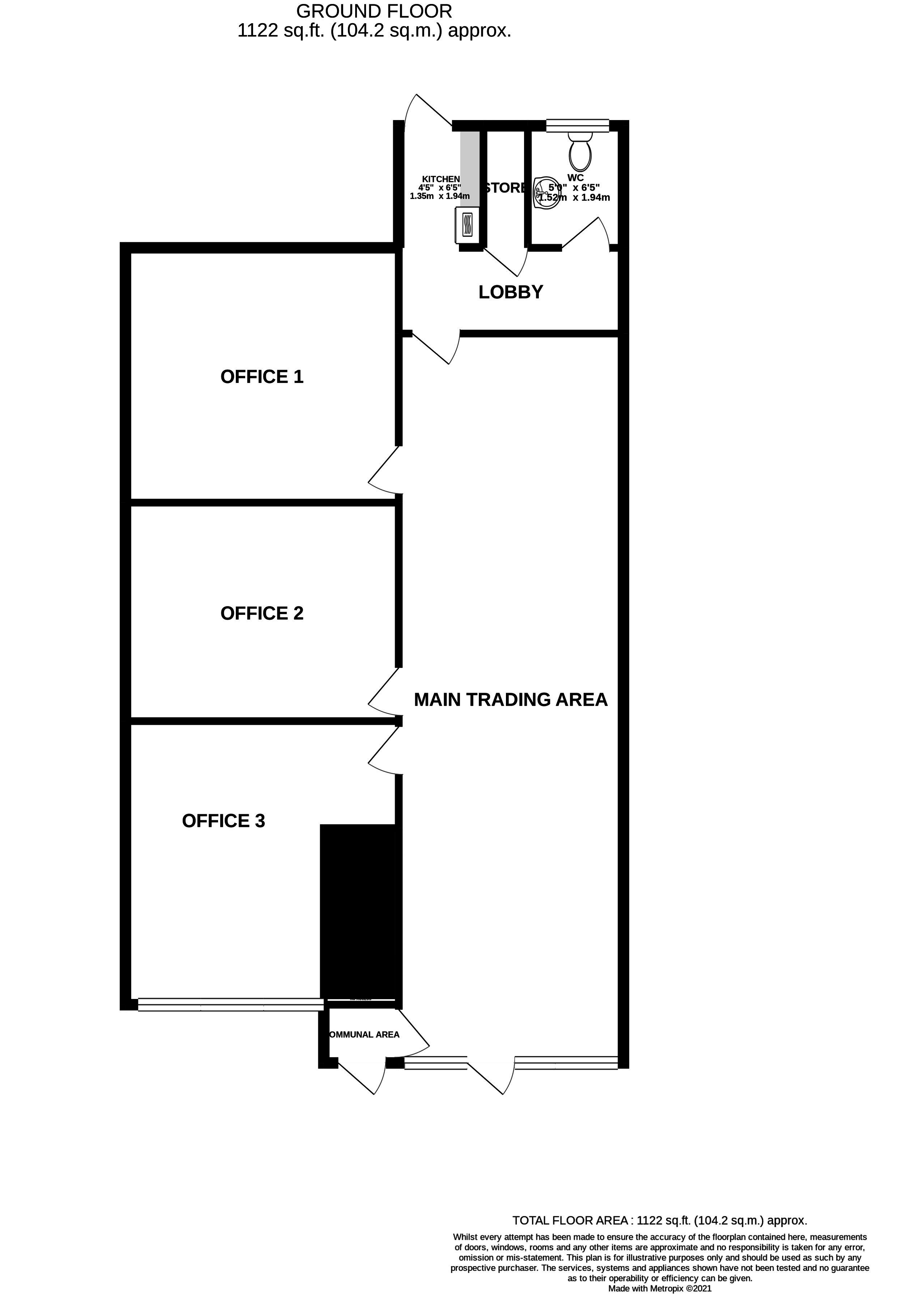
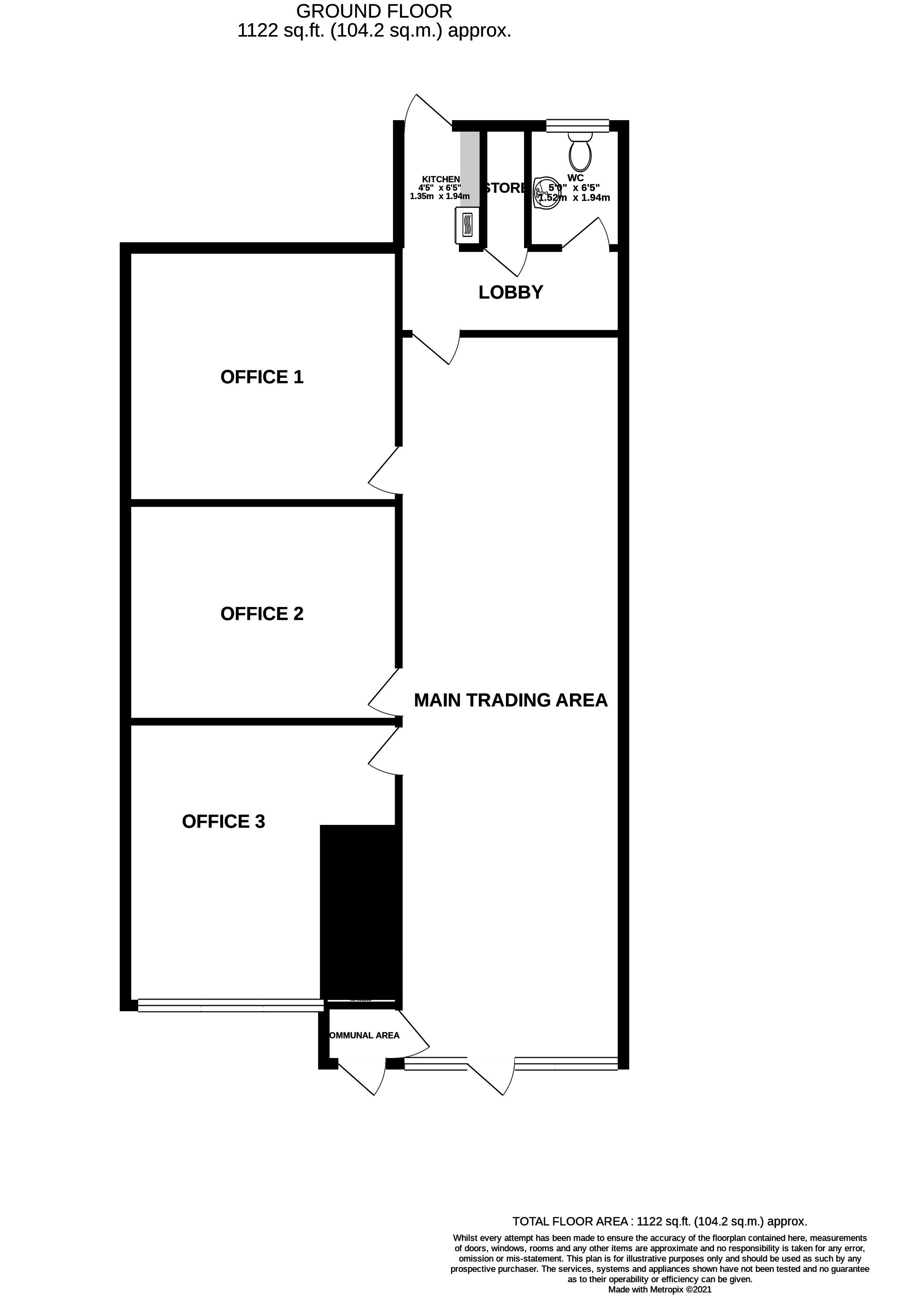
Modern, ground floor light industrial unit / office to let in a very secure industrial park in sought after Park Royal, NW10. This unit consist of main floor area and 3 partitioned offices. Further benefits include a kitchenette, WC, parking for one car and easy access for deliveries, loading and unloading.
Location:
Situated in Park Royal Metro Centre, Britannia Way, NW10 this unit is strategically located close to A40 and A406. Local area has great transport links for easy road access to Central London and surrounding counties.
Accommodation:
Ground floor unit: 1,122 sq ft (104 sq m).
Terms:
Available by a way of a new lease for term to be negotiated at annual rent of £26,000.
Usage:
We believe the premises fall under Class B of The Town & Country Planning (Use Classes) (Amendment) (England) Regulations 2020, however applicants are advised to make their own enquiries with Ealing council.
Business rates:
We believe the premises will qualify for relief but applicants are advised to make their own enquiries with London Borough of Ealing council.
EPC:
Energy performance rating: D
Legal Costs:
Each party to bear their own legal costs incurred in this transaction.
Viewings:
Strictly by an appointment via Kingworths.
Floorplans
Sorry, we do not have any floorplan files at this time.
Brochures
EPC
Sorry, we do not have any epc files at this time.